THE ZEN HAVEN

Mestalla, Valencia, Spain

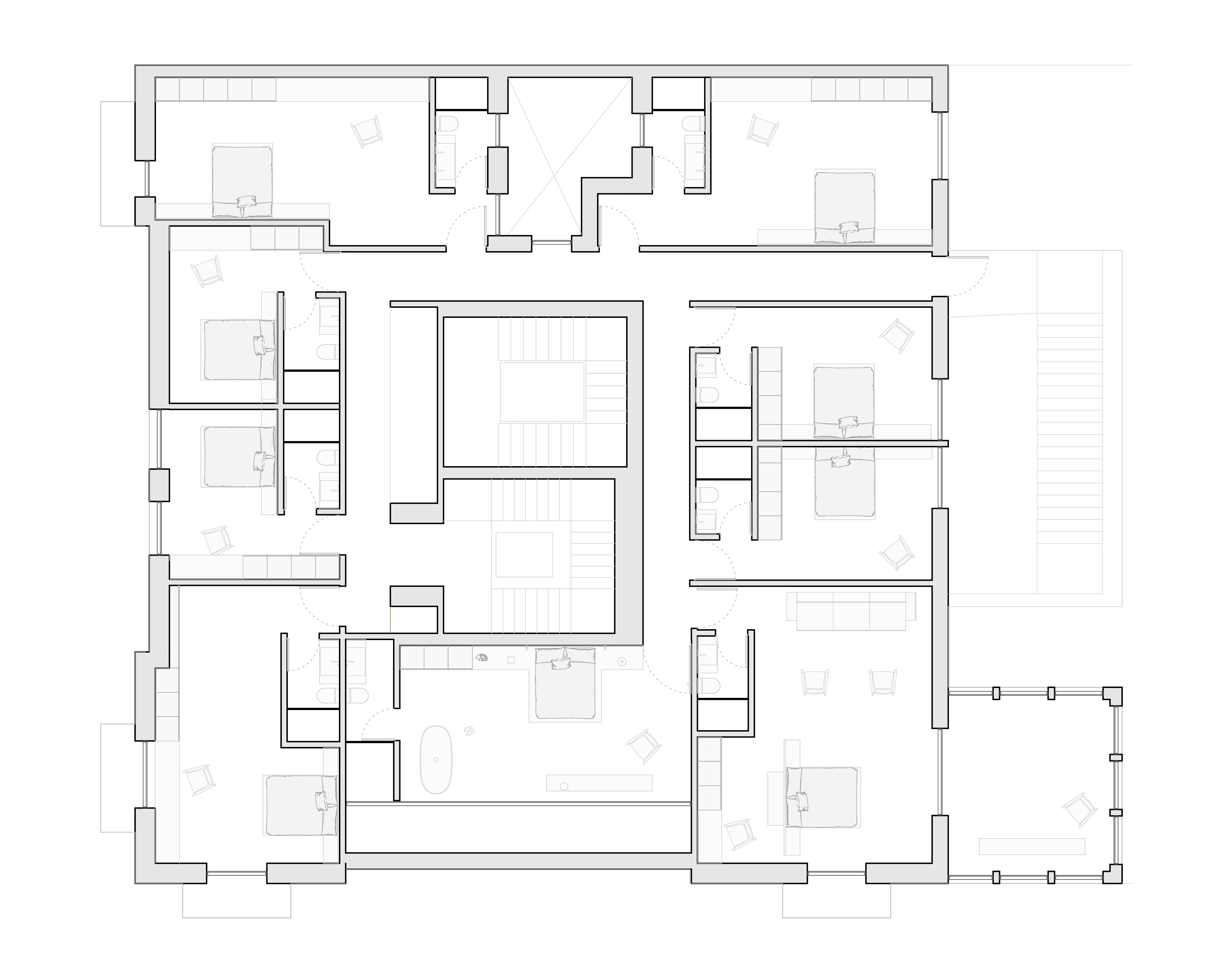
The Zen Haven is a Penthouse, designed to represent a cutting-edge approach to creating a tranquil living space. Situated atop Valencia Mestalla, likely referring to the area around the famous Mestalla football stadium in Valencia, Spain, this penthouse, along with a collection of minimalist hotel rooms, harmoniously blends form and function to foster an ethereal atmosphere conducive to contemplation and relaxation.

A key architectural feature is its dramatic rectangular skylight. This skylight is meticulously designed to immerse the space in natural light, with its clean lines and precise angles generating a captivating interplay of light and shadow that gently illuminates the pristine white walls and minimalist furnishings.

The spacious terrace of the Zen Haven Penthouse is conceived as a sanctuary for serene living. Its aesthetic thoughtfully reflects its core purpose: to embody peace, simplicity, and a harmonious relationship with the surrounding cityscape. The design stands as a testament to the power of architectural precision in crafting inspiring and highly functional environments for unwinding and connection.

This property fits well within the luxury real estate market in Spain, aligning with interests in architectural design, dream homes, and contemporary living. Valencia offers a vibrant luxury property market, with various high-end apartments, penthouses, and villas available, many featuring spacious terraces and modern designs. While details on "Moonier Studio" and specific Zen Haven Penthouse, listings are limited in general search results, the description highlights a bespoke, high-end design that would appeal to discerning buyers seeking a tranquil and architecturally significant residence in a dynamic city like Valencia.


Project Image Project Image Project Image Project Image Project Image Project Image